WANDER

INSTAGRAM

MY PAGE

0

MY CLIPS

サンライフ熱海 5階

新着物件

新着物件

新着物件

新着物件

新着物件

新着物件

新着物件

新着物件

新着物件

新着物件

新着物件

新着物件

新着物件

新着物件

新着物件

窓からダイナミックに広がる山と海。来宮の山の手に佇む、温泉大浴場付きリゾートマンション

¥20,800,000 / 59.15m2

所在地
静岡県熱海市西山町 GOOGLE MAPS
交通
JR伊東線 来宮より 徒歩11分
間取り
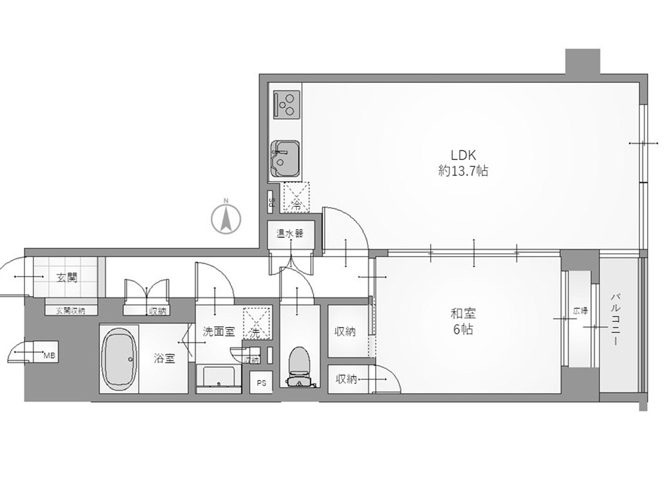
1LDK

今回ご紹介するのは、熱海市西山町の高台に建つリゾートマンションです。


海と豊かな緑に囲まれた閑静なエリアで、来宮神社も徒歩圏内。

最寄りの来宮駅まではメインのエントランスからだと徒歩11分ですが、実は道のりをショートカットできる裏口もあります。

広々としたエントランスには、来客があったときに待っていただけるスペースも。


玄関扉は、深みのあるグリーンにゴールドのあしらいが施されたシックなデザイン。

セキュリティ面でも安心のカメラ付きインターホンも設置されています。

対して玄関の中は、壁も収納もホワイトに統一されたクリーンな空間。

シューズボックスだけでなく、大きめの収納がついているのもうれしいですね。

スーツケースや冬のコート、雨具など、出かける際に必要なものや、場所をとる掃除用具などを収納するのにちょうど良さそうです。

目が覚めるような、はたまた夢の中にいるかのような白さ……!

この真っ白な廊下を抜けて、リビングへと向かいます。

LDKは13.7帖。映画好きな人はプロジェクターを設置したり、本や漫画が好きな人オーダーメイドで壁一面を本棚にしたり。

別荘利用なら、とことんリラックスできるカウチソファや、リクライニングチェアを置いたり。

大きな家具を置いても十分な広さがあるので、ライフスタイルに合わせて空間作りができそうです。

窓に広がるのは海と山。

L字型の窓のおかげで、リビングも実際の広さ以上の開放感があります。

LDKに隣接する和室は6畳。

こちらは寝室にするのがいいかもしれません。

琉球畳のような縁なしの畳と、グレーのアクセントウォールが取り入れられ、モダンな空間になっています。

キッチンはコンパクトながら、IHコンロやグリルがついていて、日々の料理には困らない設備。

車で約5分の場所にドラッグストアや家電量販店、書店を併設した大型スーパーがあるので、お買い物にも便利な立地です。さらに、湯河原方面や三島方面へも車で気軽に足を伸ばせるため、週末のドライブを兼ねたお買い物も。

独立洗面台には大きな鏡付き。その横に洗濯機置き場があります。

タオルや洗濯でよく使う洗剤などの日用品の置き場は、空いているスペースを活用してラックや収納ボックスを後付けすればうまく解決できそう。

お部屋にもお風呂がありますが、こちらの物件には温泉大浴場も!

さっとシャワーを浴びたいときはお部屋で、ゆっくり湯船に浸かりたいときは大浴場で、とその時々で使い分けすることができます。

お手洗いはウォシュレット付きで清潔感のある空間。

よく見るとトイレットペーパーホルダーやタオルかけがアンティーク調のデザインでかわいいです。

温泉大浴場は、清掃時間を除いて、24時間利用が可能。

脱衣所も湯船も明るく開放的で、すみずみまで清掃や管理が行き届いていることが伝わってきます。ここで毎日ゆっくり温泉に浸かれるなんて幸せ……!

屋上からは熱海・来宮の街を一望。深呼吸したくなるくらい、清々しい空気です。

こちらはペット可の物件。大切なペットと一緒に暮らすお家をお探しの方にもおすすめです。

自然が豊かなので、ワンちゃんを飼っている方はたのしくお散歩できる環境。ネコちゃんも、リビングの大きな窓から降り注ぐ陽を浴びながらお昼寝できます。

別荘としてはもちろん、ワンちゃんやネコちゃんと安心して暮らせるマンションを熱海でお探しの方にぜひ!

交通
JR伊東線「来宮」駅より徒歩11分・JR東海道線「熱海」駅より車で約7分(約㎞)
JR東海道線「熱海」駅よりバス利用 約12分 「日本鋼管前」下車 徒歩2分

駐車場
15台(無料・車庫証明取得可) 

仲介手数料
売買代金の3%+6万円+消費税
間取り
1LDK
専有面積
59.15㎡・バルコニー 4.5㎡
構造
鉄骨・鉄筋コンクリート造
階数
5階/7階建
築年
平成4年11月
用途
住居
契約期間
保証会社
入居可能日
相談(所有者別荘利用中)

設備
バストイレ別・室内洗濯機置き場・収納・エアコン・独立洗面台・キッチン・バルコニー・温泉大浴場・屋上

その他
♢ 主要最高面 東
♢ ペット可(飼育条件あり、管理組合への申請・許可が必要)
♢ 泉質 ナトリウム・カルシウム塩化物温泉
♢ 温泉使用料 4,600円/月
♢ 上下水道費 6,400円/月

管理費等月額支払い合計 37,610円(管理費・修繕積立費・温泉使用料・上下水道料)

画像
カテゴリー
中古マンション
管理費
20,700 円
修繕積立金
5,910 円
人気のこだわり条件
駐車2台以上 / 充実設備
専有面積
59.15㎡
所在階/構造・階建
5階/鉄骨・鉄筋コンクリート造 7階建
向き
東向き
建築年
1992年
情報更新日
2025-10-22 17:01:26
引渡し可能時期
相談(所有者別荘利用中)
その他
ペット相談
駅利便性
2沿線以上利用可
駐車場
駐車場空き有
住戸
2階以上
管理・セキュリティ
TVモニタ付インターホン

この物件にビビっと来たら!

出品者へ直接の問い合わせになります。

少し時間がかかるかも。

お問い合わせ

営業時間ならOK!

電話

出品者

マチモリ不動産の他の物件

新着物件

戸別温泉でくつろぐ、熱海でゆるやかな暮らし。ペットと過ごせる広々2LDK

¥25,000,000 / 96.14m2

  • 静岡

新着物件

高台に建つアパートの一室を、創作部屋に。

¥30,000 / 29m2

  • 静岡

新着物件

坂の途中に建つ、オレンジ色の外観が目印の元お肉屋さん

¥253,000 / 112m2

  • 静岡

新着物件

バルコニーから定点観測。海と花火を望む、ラグジュアリーな日常。温泉大浴場付きリゾートマンション

¥380,000 / 76.61m2

  • 静岡

新着物件

緑と海を望む窓辺、体と心を解きほぐす温泉大浴場と花火を楽しむ暮らし

¥11,800,000 / 82.58m2

  • 静岡

新着物件

窓からダイナミックに広がる山と海。来宮の山の手に佇む、温泉大浴場付きリゾートマンション

¥20,800,000 / 59.15m2

  • 静岡

新着物件

富士山が目の前に見える、自然に囲まれた600坪の園芸店

¥660,000 / 2010.57m2

  • 静岡

新着物件

湯河原の自然・食・温泉。湯河原ならではのライフスタイルが叶えられそうな土地。

¥2,500,000

  • 静岡

新着物件

自分好みにリフォーム!川のせせらぎに癒される、民泊にもぴったりな和風物件

¥3,000,000 / 73.36m2

  • 静岡